A 1990's Builder-Standard Kitchen Transformed
BEFORE AND AFTER: This kitchen remodel transformed a dated 1990s builder-grade space in a modified ranch home into a light-filled, rustic-transitional haven tailored to a family’s love of cooking and entertaining. By removing an awkward bump-out wall and half bath, replacing a blocking peninsula with a functional island, and selecting warm hickory cabinetry paired with soft yellowy tile flooring, the design achieved better flow, ample storage, and a bright aesthetic that blends seamlessly with the home’s existing oak trim..
When a kitchen feels more like a barrier than a gathering spot, it’s time for a change. In this Mechanicsburg remodel, designer elizaBeth Marcocci, CMKBD, worked with her clients to turn a cramped, unremarkable space into an inviting heart of the home that reflects the clients’ rustic preferences without sacrificing a sense of brightness or functionality. Read on to see how thoughtful choices and client collaboration created a kitchen that’s as practical as it is personal.
If you’ve ever walked into your kitchen and felt hemmed in by outdated layouts or wasted spaces, you’re not alone. Many homeowners in Mechanicsburg neighborhoods built in the ‘90s inherit builder-grade kitchens—functional enough, but lacking the flow and openness that most want these days. For our family, second owners of a 1993 modified ranch home, their kitchen was just that: an average space with potential, but definitely ready for a refresh that better suited their lifestyle.
The home itself is a gem in the popular Hampden Hearth neighborhood. The 3,500 square foot house features 4 bedrooms, 3 bathrooms, a 2-car garage, a vaulted dining room ceiling, and a step-down living area. Adding to its appeal, the downstairs features a full apartment for the wife’s parents, making it ideal for multigenerational living. But upstairs, the kitchen needed help to match the family’s active routine of cooking, entertaining, and hosting family gatherings.
IDENTIFYING THE PAIN POINTS
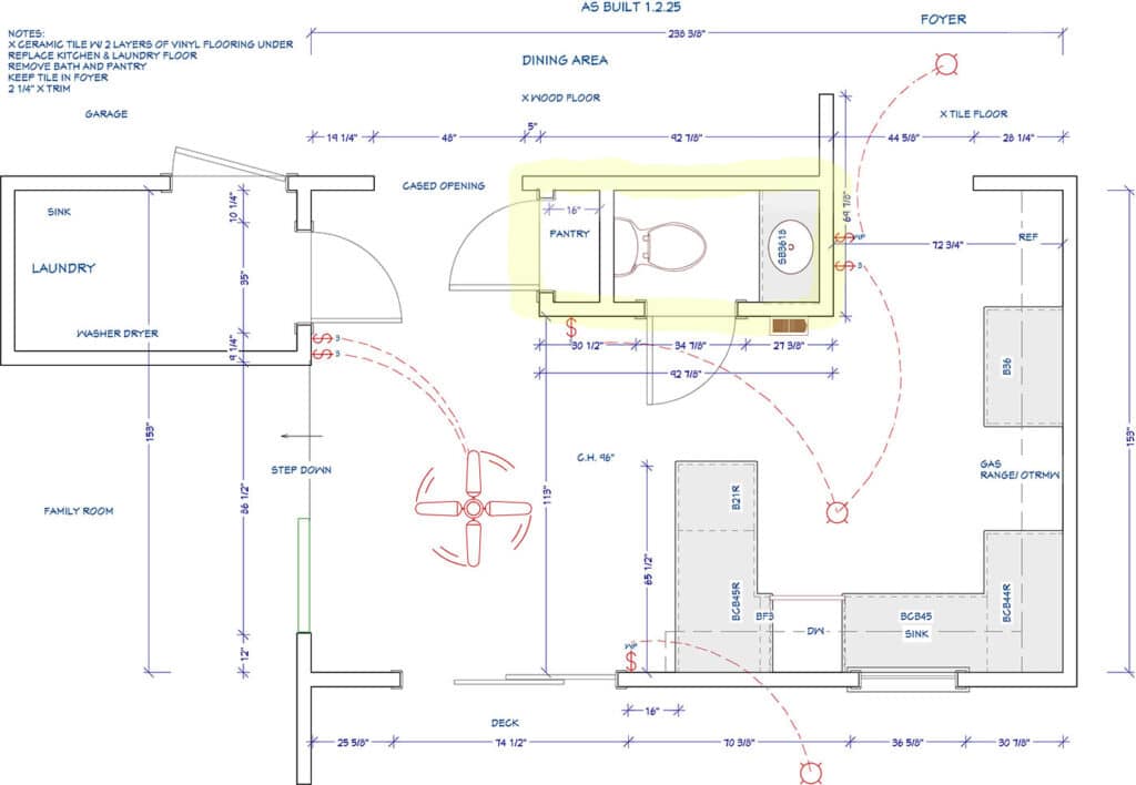
The original kitchen had all the hallmarks of ’90s builder design: Red Oak cabinets, a ceramic tiled floor, a single central light fixture, and a peninsula that forced awkward navigation, especially when entering from outside. Despite a narrow pantry closet, the storage in the kitchen felt both awkward and insufficient.
All that said, the worst offender in the original kitchen was a bump-out wall with a door placed right where you’d never want one—in the heart of the kitchen. On one side was pantry space. On the other side… a half-bath inserted into the kitchen footprint (despite another bathroom nearby). It consumed square footage, compromised circulation, and made the whole room feel chopped up.
The owners had always thought this half-bath and pantry was an odd choice by the builder and its possible elimination was one of their first requests of elizaBeth. After having the Mother Hubbard’s installation team inspect the half-bath’s plumbing that extended into the basement, elizaBeth determined the half bath and bump-out wall could be removed! Her goals were clear: open up the kitchen, design more and smarter storage for a couple that loves to cook, add an island for prep space, and create a rustic aesthetic that wasn’t too dark, blending transitional elements with the home’s existing oak trim.
A COLLABORTATIVE DESIGN JOURNEY
Finding the right designer means partnering with someone who listens and adapts. One of elizaBeth’s superpowers is her ability to understand how a homeowner actually lives in the space. This empathetic approach allows her to leverage decades of design experience and to offer bold options that she is confident will maximize the possibilities for her clients.
The after floorplan illustrates this magic—removing the bath and pantry wall, something most designers might hesitate to suggest, totally transformed the space! The new footprint allowed for a relocated refrigerator, a 48″ x 24″ island (perfectly sized for the constraints), and an optimized placement of the major appliances and sink to form an exacting work triangle. The new footprint ensured that clearances were maintained, guaranteeing easy movement even during busy family gatherings.
Once the space had been liberated by removing the half-bath and pantry/wall, the process of building upon the new floorplan began in earnest. Originally the couple wanted knotty hickory for the cabinetry, but once samples were held in-hand, it was decided that knotty hickory would darken the room too much. elizaBeth suggested regular hickory that still has a great deal of character but wouldn’t overwhelm the space. Problem solved!
KEY DESIGN FEATURES THAT BRING IT ALL TOGETHER
The new floor to ceiling cabinetry shines in regular stained hickory with shaker-style doors and brushed nickel hardware, offering drawers galore for spices and utensils. The island, topped with white quartz veined in gray, provides essential prep space while opening the flow—no more dodging the peninsula.
Flooring in that warm yellowy tile ties into the adjacent foyer’s diagonal pattern and dining room’s wood floors, creating cohesion. Improving upon the single light fixture of the old kitchen, several recessed ceiling lights were strategically added to provide an even, comfortable base of illumination. The overhead lighting was complemented by undercabinet LED lighting which is optimal for illuminating the workspace and dimmable for ambiance. Other visual and functional highlights include a custom curved wood hood over the stainless steel gas range, and integrated stainless steel appliances like the dishwasher and French door fridge.
The aesthetic? Rustic-transitional at its best—light, open, and warm, blending with the home’s oak trim while adding modern touches like the undermount sink and varied backsplash.
TRANSFORMATIONS THAT MAKE A DIFFERENCE
Major changes included ditching the bump-out for tall pantry cabinets and fridge placement, swapping the peninsula for the island to ease entry and movement, and updating lighting and flooring for a brighter, more intentional feel. Storage soared with pull-outs and dedicated spaces, making cooking and entertaining a breeze.
The impact is evident in the before-and-after photos: from cluttered and cramped to open and inviting, the kitchen now feels natural and tailored, with wide pathways and thoughtful organization that suit this family perfectly.
A KITCHEN THEY LOVE, BUILT FOR LIFE
elizaBeth comments that, “Working with the family was a joy—fun, collaborative, and full of great ideas!” They agreed to key changes like the bath removal and are thrilled with the result: a space that reflects their needs, from spice storage to family flow. As elizaBeth often says, great design plays with what you have, and here, it turned an average kitchen into something stunning.
If this story inspires your own remodel, we’d love to hear from you. After all, isn’t the best kitchen the one that feels perfectly yours?





